• PROJECTS
  • SERVICES
  • About
MADA Architecture studio
  • PROJECTS
  • SERVICES
  • About
Cypress Hills © MADA

Proposal:

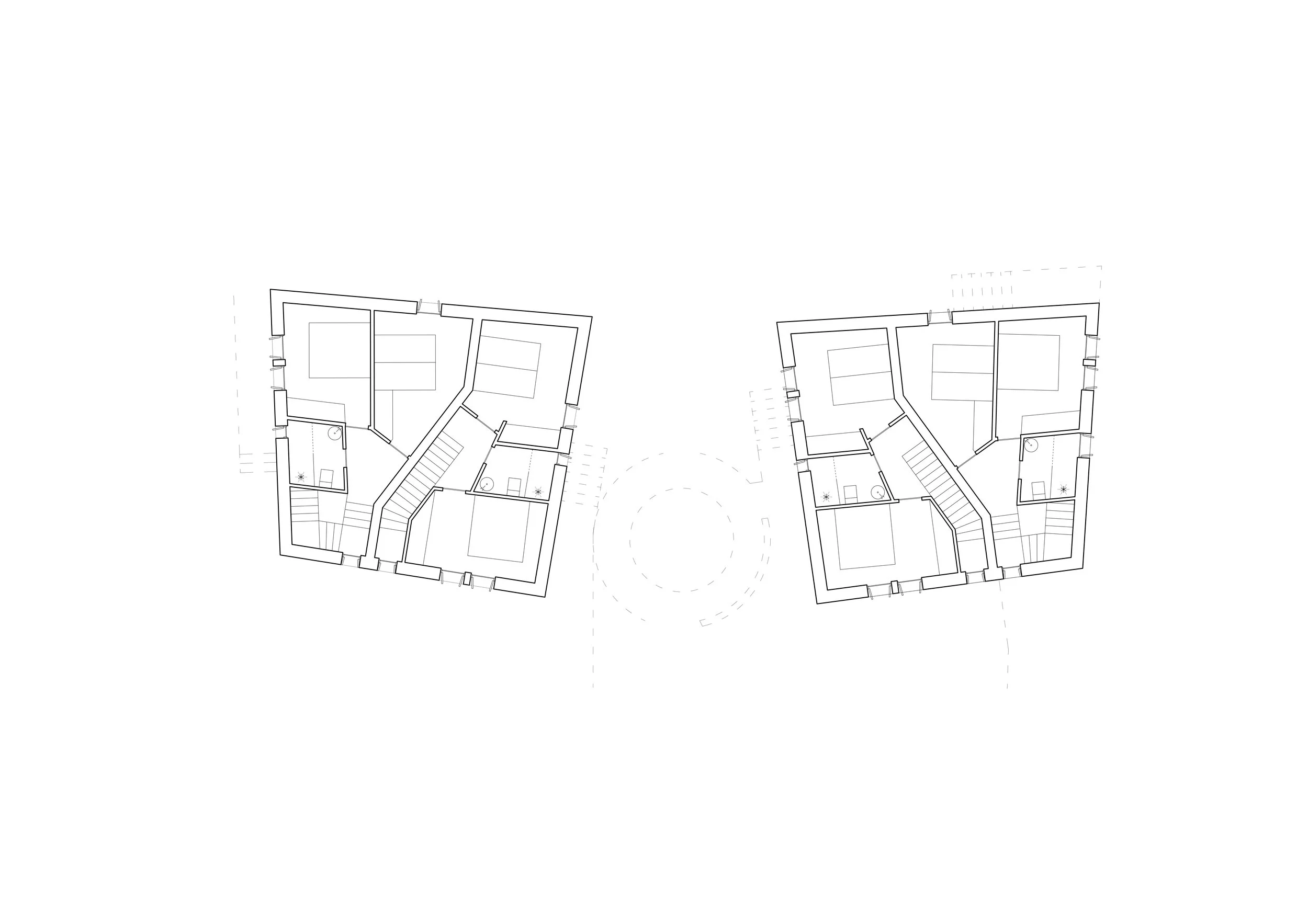
A very strong presence of the heritage was even more enhanced with an enclosing stone wall međaš and the guvno, the old stone structure that used to serve as threshing floor and as an important gathering point. Besides that, probably the biggest challenge for us was to make a whole out of five different plots and then once again split them into ten entities with their own features. We were all the time trying hard to turn the constraints into advantages.

We meet again. This was probably the best way for us to continue reshaping this old stone village. The fantasy of controlling everything was abandoned as soon as we faced this inclined terrain with its scattered stone ruins. Once again, we embraced Incompletion as an aesthetic. Indeed, presenting an aesthetic of incompletion is probably harder to construct than the effect of completion.

 
Cypress Hills © MADA
 
Cypress Hills © MADA
Cypress Hills © MADA
Cypress Hills © MADA
KUCA 0 SVE.jpg
Cypress Hills © MADA
presek a.jpg
presek b.jpg
presek c.jpg
presek d.jpg
 
Cypress Hills © MADA
Cypress Hills © MADA
Cypress Hills © MADA
twins izgled.jpg
 
Cypress Hills © MADA
Cypress Hills © MADA
Cypress Hills © MADA
Cypress Hills © MADA
Cypress Hills © MADA
Cypress Hills © MADA
Cypress Hills © MADA

© 2026 MADA Architecture studio, All rights reserved